公布日:2023.08.15
申請日:2022.12.14
分類號:C02F3/30(2023.01)I;C02F101/10(2006.01)N;C02F101/16(2006.01)N;C02F101/38(2006.01)N;C02F101/30(2006.01)N
摘要
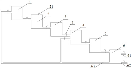
本申請涉及一種深度脫氮除磷的AOA水處理系統及其水處理方法,依次設置有預厭氧區、厭氧區、好氧區、缺氧區、后缺氧區和二沉池,以上分區按照上述順序依次通過管道連接,兩個區域的連通管道上設置有閥門;其中:二沉池的底部設置有污泥的回流管道,回流管道與預厭氧區和缺氧區連通,回流管道在靠近預厭氧區污泥入口和缺氧區的污泥入口處的處設置有閥門。本申請中深度脫氮除磷的AOA水處理系統的回流污泥為了克服AOA主流工藝的不足,分為兩路,采用側流工藝對主流工藝進行優化,在回流污泥R1線上設置一個獨立的預厭氧區,經過復雜的生化過程后進入到主流線上的厭氧區;回流污泥R2則直接回流至缺氧區提高MLSS,以增加反硝化內碳源的總量,提高脫氮效率。

權利要求書
1.一種深度脫氮除磷的AOA水處理系統,其特征在于,依次設置有預厭氧區、厭氧區、好氧區、缺氧區、后缺氧區和二沉池,以上分區按照上述順序依次通過管道連接,兩個區域的連通管道上設置有閥門;其中:二沉池的底部設置有污泥的回流管道,回流管道與預厭氧區和缺氧區連通,回流管道在靠近預厭氧區污泥入口和缺氧區的污泥入口處的處設置有閥門。
2.根據權利要求1所述的深度脫氮除磷的AOA水處理系統,其特征在于,所述的厭氧區設置污水入口;二沉池上設置有水的出口和污泥的出口。
3.一種通過權利要求1或2所述的深度脫氮除磷的AOA水處理系統處理污水的方法,包括以下步驟:S1:將回流污泥R1在預厭氧區進行水解發酵和內源反硝化,得到預處理后的回流污泥R1;S2:步驟S1中預處理后的回流污泥R1通過管道進入到厭氧區,同時厭氧區的進水口泵入污水,在厭氧區進行儲存內源碳和釋磷,混合液接著進入到好氧區,在好氧區進行硝化和除磷后,混合液進行到缺氧區;S3:在缺氧區會泵入回流污泥R2,回流污泥R2與混合液進一步混合后,通過內源反硝化作用進行深度除氮;處理完畢后,混合溶液進入到后缺氧區;S4:在后缺氧區進行短時曝氣吹脫混合溶液中的N2后進入到二沉池;S5:混合溶液在二沉池進行沉淀濃縮后,分成上清液和沉降污泥,上清液進入深度處理系統進行后續處理;部分沉降活性污泥通過循環管道分為回流污泥R1和回流污泥R2分別回流至預厭氧區和缺氧區;剩余污泥定期排空。
4.根據權利要求3所述的通過深度脫氮除磷的AOA水處理系統處理污水的方法,其特征在于,所述步驟S1中,水解發酵和內源反硝化至回流污泥R1中的硝酸鹽含量<1mg/L;rbCOD增加5mg/L以上。
5.根據權利要求3所述的通過深度脫氮除磷的AOA水處理系統處理污水的方法,其特征在于,所述步驟S2中,回流污泥R1回流量為污水進水量體積的90~110%。
6.根據權利要求3所述的通過深度脫氮除磷的AOA水處理系統處理污水的方法,其特征在于,所述步驟S3中,回流污泥R2回流量為污水進水量體積的90~110%。
7.根據權利要求3所述的通過深度脫氮除磷的AOA水處理系統處理污水的方法,其特征在于,所述步驟S4中,短時曝氣的時間為0.5~1h并保證曝氣后DO<0.5mg/L。
8.根據權利要求3所述的通過深度脫氮除磷的AOA水處理系統處理污水的方法,其特征在于,所述的上清液經過深度處理后需要達準四類標準,其中TN≤10mg/L。
發明內容
本申請提供一種深度脫氮除磷的AOA水處理系統及其水處理方法;其可以進一步提升脫氮除磷的效果,并且提升污泥沉降濃縮效果。
第一個方面,本申請提供了一種深度脫氮除磷的AOA水處理系統,依次設置有預厭氧區、厭氧區、好氧區、缺氧區、后缺氧區和二沉池,以上分區按照上述順序依次通過管道連接,兩個區域的連通管道上設置有閥門;其中:二沉池的底部設置有污泥的回流管道,回流管道與預厭氧區和缺氧區連通,回流管道在靠近預厭氧區污泥入口和缺氧區的污泥入口處的處設置有閥門。
通過采用上述技術方案,本申請中在傳統的AOA水處理系統的基礎上,增設了預厭氧區,預厭氧區主要是對回流至厭氧區的回流污泥R1進行預處理,預處理主要是為了消耗掉污泥中的溶解氧,并降低污泥中的硝酸鹽含量,增加有機物(rbCOD)及揮發性脂肪酸(VFAs)含量;預處理后的回流污泥R1再與污水在厭氧區進行混合時,可以使氨化菌將加快有機氮分解轉化為氨態氮,同時聚糖菌和聚磷菌能夠快速高效完成內碳源儲存,同時聚磷菌釋磷,縮短厭氧區停留時間,避免時間過程造成碳源的損耗。
本申請中還在傳統的AOA水處理系統的基礎上,增設了后缺氧區,后缺氧區的增設目的主要是為了通過在后缺氧區進行短時曝氣吹脫混合液中的N2,防止污泥二沉池中發生反硝化或厭氧釋磷;從而保證使得污泥在二沉池的濃縮性能較好。本申請中通過增設預厭氧區和后缺氧區,可以明顯的提升對氮磷的去除效果。
作為優選,所述的厭氧區設置污水入口;二沉池上設置有水的出口和污泥的出口。
通過采用上述技術方案,本申請中污水是從厭氧區進入,不會進行預厭氧區,從而可以回流污泥R1的預處理不受影響;二沉池中脫氮除磷的水需要通過水出口進一步進行后續的深度處理,二沉池的污泥也許定期定量進行排放。
第二個方面,本申請中提供了一種通過深度脫氮除磷的AOA水處理系統處理污水的方法,包括以下步驟:S1:將回流污泥R1在預厭氧區進行水解發酵和內源反硝化,得到預處理后的回流污泥R1;S2:步驟S1中預處理后的回流污泥R1通過管道進入到厭氧區,同時厭氧區的進水口泵入污水,在厭氧區進行儲存內源碳和釋磷,混合液接著進入到好氧區,在好氧區進行硝化和除磷后,混合液進行到缺氧區;S3:在缺氧區會泵入回流污泥R2,回流污泥R2與混合液進一步混合后,通過內源反硝化作用進行深度除氮;處理完畢后,混合溶液進入到后缺氧區;S4:在后缺氧區進行短時曝氣吹脫混合溶液中的N2后進入到二沉池;S5:混合溶液在二沉池進行沉淀濃縮后,分成上清液和沉降污泥,上清液進入深度處理系統進行后續處理;部分沉降活性污泥通過循環管道分為回流污泥R1和回流污泥R2分別回流至預厭氧區和缺氧區;剩余污泥定期排空。
通過采用上述技術方案,在本申請中的方法中,回流污泥R1在預厭氧區發生復雜有機物的水解發酵、反硝化和去氧等反應,因而在厭氧區可以充分利用進水碳源,強化內源反硝化,降低對除磷的抑制,減少污泥產量。在厭氧區具有深度厭氧環境、低硝酸鹽濃度、污泥水解發酵產物及進水碳源,聚糖菌和聚磷菌可快速高效源儲碳,同時聚磷菌完成釋磷,所需厭氧區時間較短。在好氧區有豐富的污泥齡較長的硝化菌(因為含有回流污泥R1),好氧硝化速率快,而聚磷菌消耗內碳源過量攝取磷,去除氨氮和磷酸鹽。在缺氧區因回流污泥R2提高了污泥濃度,反硝化聚糖菌和聚磷菌總量增加,內源反硝化效果增強,實現深度脫氮。在后缺氧區經短時曝氣吹脫污泥附著的N2,并適當補充溶解氧,既能防止二沉池底部污泥反硝化或釋磷,又可提高污泥的沉降濃縮性能。在二沉池底的回流污泥中僅R1流經預厭氧區進行預處理后再進入厭氧區,回流污泥R2則直接進入厭氧區進行內源反硝化,防止內源反硝化菌處于“饑餓狀態”。
作為優選,所述步驟S1中,水解發酵和內源反硝化至回流污泥R1中的硝酸鹽含量<1mg/L;rbCOD增加5mg/L以上。
通過采用上述技術方案,通過控制硝化反應至硝酸鹽的含量低于1mg/L,可以避免過多的硝酸鹽影響厭氧區的釋磷環境,而增加rbCOD可以加速厭氧區的內源儲碳速度,可以很大程度上縮短厭氧區的停留時間,避免時間過長,引起碳源的消耗。
作為優選,所述步驟S2中,回流污泥R1回流量為污水進水量體積的90~110%。
通過采用上述技術方案,本申請回流污泥R1與污水的進水量的比例,在保證水處理效果的同時,提高水處理的效率。
作為優選,所述步驟S3中,回流污泥R2回流量為污水進水量體積的90~110%。
通過采用上述技術方案,本申請中通過控制回流污泥R2的進樣量,可以加速缺氧區的硝化速度進而提升整體的水處理效果和速度。
作為優選,所述步驟S4中,短時曝氣的時間為0.5~1h并保證曝氣后DO<0.5mg/L。
通過采用上述技術方案,本申請中短時曝氣時間可以保證污泥在二沉池的沉降速度,提升沉淀濃縮的效果。
作為優選,所述的上清液經過深度處理后需要達準四類標準,其中TN≤10mg/L。
綜上所述,本申請包括以下至少一種有益技術效果:1、本申請中深度脫氮除磷的AOA水處理系統的回流污泥為了克服AOA主流工藝的不足,分為兩路,采用側流工藝對“AOA生化池-二沉池”的主流工藝進行優化,在回流污泥R1線上設置一個獨立的預厭氧區,經過復雜的生化過程后進入到主流線上的厭氧區;回流污泥R2則直接回流至缺氧區提高MLSS,以增加反硝化內碳源的總量,提高脫氮效率。
2.本申請中的深度脫氮除磷的AOA水處理系統增加了后缺氧區,在后缺氧區經過短時曝氣以提高污泥的沉降濃縮性能,以獲得高濃度的回流污泥,保證出水水質達標,內源反硝化的速率低于常規外源反硝化,AOA工藝需要更久的缺氧停留時間,同時為了更快地從好氧過渡到缺氧狀態,好氧區末端一般采用低溶解氧策略,導致缺氧區末端活性污泥容易攜帶大量還原的N2且溶解氧含量很低,快速曝氣可以對這種情況進行改善,更利于二沉池中泥水分離。
3.本申請中深度脫氮除磷的AOA水處理系統和處理方法中,處理系統至少包括預厭氧區、厭氧區、好氧區、缺氧區、后缺氧區和二沉池,回流污泥R1先進入預厭氧區,活性污泥中吸附夾雜的由原污水攜入顆粒有機物、微生物菌體殘留物等,部分在兼性菌和厭氧菌的水解發酵后產生rbCOD及VFAs,以補充進水rbCOD及VFAs的不足,強化原污水中有機物的利用,減少產泥量,同時污泥中的聚糖菌和聚磷菌繼續進行內源反硝化,降低回流污泥R1中硝態氮濃度,高MLSS活性污泥內源呼吸對氧產生巨大需求;預處理出水與回流污泥R1混合后,厭氧區具有深度厭氧環境、低硝酸鹽濃度、污泥水解發酵產物及進水碳源,使原污水中有機物快速分解轉化為rbCOD及VFAs,包括有機氮的氨化,聚糖菌和聚磷菌吸收利用外碳源以及將胞內的糖原(Gly)轉化為聚羥基烷酸酯(PHA),完成內碳源儲存,聚磷菌伴隨著釋磷;在好氧區,活性污泥中的硝化菌將氨氮轉化為亞硝酸氮或硝酸氮,聚磷菌消耗PHA產生能量過量攝取磷,實現硝化和除磷,反硝化聚糖菌和聚磷菌消耗PHA與部分外碳源轉化為Gly;在缺氧區,混合液與回流污泥R2混合后提高了污泥濃度,污泥中聚糖菌和聚磷菌總量增加,提高胞內Gly驅動的反硝化速率;在后缺氧區,通過短時曝氣吹脫混合液中的N2并控制溶解氧含量,防止污泥二沉池中發生反硝化或厭氧釋磷,利于污泥的沉降濃縮以獲得高MLSS的回流污泥;二沉池泥水分離并經后續深度處理后,出水水質可達準四類標準,其中TN≤10mg/L。
4.本發明提高了原污水碳源的利用及內碳源的儲存,不需投加碳源,減少污泥產量,運營成本低、運行穩定性好、流程簡單易操作,可實現深度脫氮除磷。
(發明人:古凌艷;渠艷飛;王維康;李波文)






