公布日:2023.08.01
申請日:2022.01.20
分類號:C02F11/122(2019.01)I;C02F11/14(2019.01)I
摘要
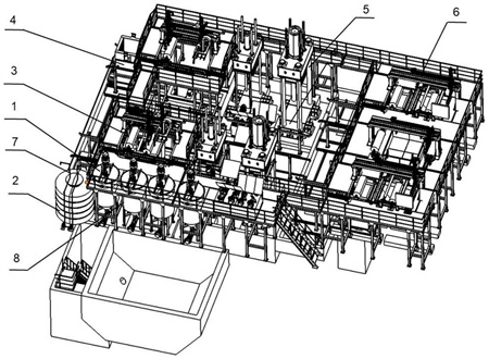
本發明涉及一種污泥深度脫水處理系統,采用攪拌裝置與植物液除臭裝置通過植物液輸送管道連接,實現了天然植物液和絮凝劑依次輸送至攪拌裝置與泥漿混合,保證了泥漿絮凝結塊為泥餅,改善了污泥脫水處理作業環境中臭氣的問題,采用雙驅動梁式布料裝置與攪拌裝置通過污泥輸送管道連接,實現了濾布上的多層布泥,同時還在自動抓取機械手直桿外表面安裝了稱重系統,便于實時監測并顯示污泥重量,此外,還設置了智能導向料車裝置、立式高壓壓濾裝置和笛卡爾出料裝置,實現了攪拌混合后的泥餅運輸至壓濾機深度脫水處理再轉運至出料機污泥分離,本發明可實現污泥的高效脫水,具有污泥脫水處理異味小和占地面積小等特點。

權利要求書
1.一種污泥深度脫水處理系統,包括攪拌裝置、植物液除臭裝置、雙驅動梁式布料裝置、智能導向料車裝置、立式高壓壓濾裝置、笛卡爾出料裝置、植物液輸送管道和污泥輸送管道,其特征在于,所述的攪拌裝置與所述的植物液除臭裝置通過所述的植物液輸送管道連接,用于泥漿、天然植物液依次和絮凝劑的攪拌混合以形成污泥,所述的植物液除臭裝置用于綜合儲存和調節天然植物液和絮凝劑,所述的雙驅動梁式布料裝置與攪拌裝置通過所述的污泥輸送管道連接,可實現濾布上多層布泥,所述的智能導向料車裝置可實現沿特定方向轉運,所述的立式高壓壓濾裝置可實現污泥的高壓壓濾脫水,所述的笛卡爾出料裝置可實現分離濾布卷粘連的污泥。
2.根據權利要求1所述的一種污泥深度脫水處理系統,其特征在于,所述的攪拌裝置設置有步進電機、污泥混合倉、攪拌軸和攪拌架,所述的步進電機安裝在污泥混合倉的上方,通過攪拌軸與攪拌架相連,從而實現攪拌架高速旋轉,所述的攪拌裝置有四個,并且等間距線性安裝在地面上。
3.根據權利要求1所述的一種污泥深度脫水處理系統,其特征在于,所述的植物液除臭裝置儲存有天然植物液和絮凝劑,所述的天然植物液與泥漿混合,可改善污泥脫水處理作業環境中臭氣的問題,所述的絮凝劑與泥漿混合,可實現泥漿的絮凝結塊為泥餅。
4.根據權利要求1所述的一種污泥深度脫水處理系統,其特征在于,所述的雙驅動梁式布料裝置設置有雙支柱梁、導向移動平臺、自動抓取機械手、齒輪齒條機構、稱重系統和雙驅動濾布卷軸,所述的雙支柱梁與所述的導向移動平臺通過螺栓固定相連,所述的自動抓取機械手通過齒輪齒條機構安裝在導向移動平臺上方,可實現X軸、Y軸、Z軸三方向自由移動,所述的稱重系統安裝在自動抓取機械手直桿外表面,可實現實時監控并顯示污泥重量,所述的雙驅動濾布卷軸通過脹緊套與定位軸承座相連安裝在濾布卷導軌上方,可實現濾布卷在導軌上自動展開鋪平。
5.根據權利要求1所述的一種污泥深度脫水處理系統,其特征在于,所述的智能導向料車裝置設置有伺服電機、雙導向滾輪和濾布軸,所述的伺服電機與智能導向料車前輪通過皮帶相連,用于提供動力使前輪帶動智能導向料車自由移動,所述的雙導向滾輪安裝在智能導向料車機殼的外側,用于引導智能導向料車定向移動,所述的濾布軸安裝在智能導向料車上端面,濾布軸上纏繞的一定余量的濾布,在壓濾時可實現濾布隨壓濾機向下壓榨而向下移動,可實現粘連污泥的濾布壓濾時不會被折斷。
6.根據權利要求1所述的一種污泥深度脫水處理系統,其特征在于,所述的立式高壓壓濾裝置設置有液壓站、壓濾機和高壓油管,所述的液壓站與壓濾機通過高壓油管相連,用于提供動力使壓濾機進行上下往復壓濾運動,可實現污泥的高壓壓濾脫水,其中,壓濾機共有二套,分別進行粗壓和精壓,保證污泥中大量水分被壓濾脫出。
7.根據權利要求1所述的一種污泥深度脫水處理系統,其特征在于,所述的笛卡爾出料裝置設置有雙支撐梁、導向機構、笛卡爾三坐標機械手、齒輪齒條機構、S形布泥分離滾輪和刮料板,所述的雙支撐梁與導向機構通過螺栓固定相連,笛卡爾三坐標機械手通過齒輪齒條機構安裝在導向機構上方,可實現X軸、Y軸、Z軸三方向自由移動,所述的S形布泥分離滾輪和刮料板安裝在導向機構上方,用于污泥和濾布的分離。
發明內容
本發明的目的是提供一種結構簡單、合理,泥脫水效率高,污泥脫水處理異味小和占地面積小的污泥深度脫水處理系統。
為了實現上述目的,本發明采取的技術方案為:
一種污泥深度脫水處理系統,包括攪拌裝置、植物液除臭裝置、雙驅動梁式布料裝置、智能導向料車裝置、立式高壓壓濾裝置、笛卡爾出料裝置、植物液輸送管道和污泥輸送管道,其特征在于,所述的攪拌裝置與所述的植物液除臭裝置通過所述的植物液輸送管道連接,用于泥漿、天然植物液依次和絮凝劑的攪拌混合以形成污泥,所述的植物液除臭裝置用于綜合儲存和調節天然植物液和絮凝劑,所述的雙驅動梁式布料裝置與攪拌裝置通過所述的污泥輸送管道連接,可實現濾布上多層布泥,所述的智能導向料車裝置可實現沿特定方向轉運,所述的立式高壓壓濾裝置可實現污泥的高壓壓濾脫水,所述的笛卡爾出料裝置可實現分離濾布卷粘連的污泥。
進一步,作為優選,所述的攪拌裝置中設置有步進電機、污泥混合倉、攪拌軸和攪拌架,所述的步進電機安裝在污泥混合倉的上方,通過攪拌軸與攪拌架相連,可實現攪拌架高速旋轉,所述的攪拌裝置有四個,并且等間距線性安裝在地面上。
進一步,作為優選,所述的植物液除臭裝置設置儲存有天然植物液和絮凝劑,所述的天然植物液與泥漿混合,可改善污泥脫水處理作業環境中臭氣的問題,所述的絮凝劑與泥漿混合,可實現泥漿的絮凝結塊為泥餅。
進一步,作為優選,所述的雙驅動梁式布料裝置設置有雙支柱梁、導向移動平臺、自動抓取機械手、齒輪齒條機構、稱重系統和雙驅動濾布卷軸,所述的雙支柱梁與導向移動平臺通過螺栓固定相連,所述的自動抓取機械手通過齒輪齒條機構安裝在導向移動平臺上方,可實現X軸、Y軸、Z軸三方向自由移動,所述的稱重系統安裝在自動抓取機械手直桿外表面,可實現實時監控并顯示污泥重量,所述的雙驅動濾布卷軸通過脹緊套與定位軸承座相連安裝在濾布卷導軌上方,可實現濾布卷在導軌上自動展開鋪平。
進一步,作為優選,所述的智能導向料車裝置設置有伺服電機、雙導向滾輪和濾布軸,所述的伺服電機與智能導向料車前輪通過皮帶相連,用于提供動力使前輪帶動智能導向料車自由移動,所述的雙導向滾輪安裝在智能導向料車機殼的外側,用于引導智能導向料車定向移動,所述的濾布軸安裝在智能導向料車上端面,濾布軸上纏繞的一定余量的濾布,在壓濾時可實現濾布隨壓濾機向下壓榨而向下移動,實現了粘連污泥的濾布壓濾時不會被折斷。
進一步,作為優選,所述的立式高壓壓濾裝置設置有液壓站、壓濾機和高壓油管,所述的液壓站與壓濾機通過高壓油管相連,用于提供動力使壓濾機進行上下往復壓濾運動,可實現污泥的高壓壓濾脫水,其中,壓濾機共有二套,分別進行粗壓和精壓,保證污泥中大量水分被壓濾脫出。
進一步,作為優選,所述的笛卡爾出料裝置設置有雙支撐梁、導向機構、笛卡爾三坐標機械手、齒輪齒條機構、S形布泥分離滾輪和刮料板,所述的雙支撐梁與導向機構通過螺栓固定相連,所述的笛卡爾三坐標機械手通過齒輪齒條機構安裝在導向機構上方,可實現X軸、Y軸、Z軸三方向自由移動,所述的S形布泥分離滾輪和刮料板安裝在導向機構上方,用于污泥和濾布的分離。
本發明的有益效果:
本發明提供了一種污泥深度脫水處理系統,包括攪拌裝置、植物液除臭裝置、雙驅動梁式布料裝置、智能導向料車裝置、立式高壓壓濾裝置、笛卡爾出料裝置、植物液輸送管道和污泥輸送管道,采用攪拌裝置與植物液除臭裝置通過植物液輸送管道連接,實現了天然植物液和絮凝劑依次輸送至攪拌裝置與泥漿混合,保證了泥漿絮凝結塊為泥餅,改善了污泥脫水處理作業環境中臭氣的問題,采用雙驅動梁式布料裝置與攪拌裝置通過污泥輸送管道連接,實現了濾布上的多層布泥,同時還在自動抓取機械手直桿外表面安裝了稱重系統,便于實時監測并顯示污泥重量,此外,還設置了智能導向料車裝置、立式高壓壓濾裝置和笛卡爾出料裝置,實現了攪拌混合后的泥餅運輸至壓濾機深度脫水處理再轉運至出料機污泥分離,以上幾部分的實現使本發明具有省時、省力、泥脫水效率高、污泥脫水處理異味小和占地面積小的特點,解決了污泥脫水處理難以脫出污泥所含水分、污泥脫水處理異味大和空間利用率低的困難問題。
(發明人:高永琳;歷福貴)






