申請日2015.07.24
公開(公告)日2017.02.01
IPC分類號C02F9/14
摘要
本發明公開了一種處理市政污泥厭氧消化液的方法,包括如下步驟:污泥消化液進入調節池,攪拌勻化,攪拌方式采用機械攪拌或曝氣攪拌;用泵或重力流從調節池提升進入反硝化池,計量流量;在反硝化池中,原水中的有機物和來自前面硝化池的硝態氮發生反硝化反應;硝化池接受來自厭氧氨氧化反應器的回流污水和沉淀池的回流污泥;反硝化池出水進入沉淀池,泥水分離以截留污泥,同時該沉淀池采用MBR膜截留的形式;沉淀池出水進入厭氧氨氧化反應器,以去除廢水中的氨氮;厭氧氨氧化反應器的出水進入產水池,部分產水回流到前述的硝化池。本發明和普通“硝化-反硝化”工藝相比,總氮脫除率高,運行費用低。
權利要求書
1.一種處理市政污泥厭氧消化液的方法,其特征在于,包括如下步驟:
步驟1)污泥消化液(7)進入調節池(1),攪拌勻化,攪拌方式采用機械攪拌或曝氣攪拌;
步驟2)用泵或重力流從調節池提升進入反硝化池(2),計量流量;
步驟3)在反硝化池(2)中,原水中的有機物和來自前面硝化池(3)的硝態氮發生反硝化反應,生成氮氣,同時有機物得到去除,反硝化池(2)部分混合液(8)也可以回流到硝化池(3)中,以進一步去除有機物,反硝化池(2)到硝化池(3)的第一回流比(R1)控制在0~500%;
步驟4)硝化池(3)接受來自厭氧氨氧化反應器(5)的回流污水(10)和沉淀池(4)的回流污泥(9),利用硝化菌的作用將厭氧氨氧化反應器(5)未反應完全的氨氮轉化為硝態氮,同時沉淀池回流的污泥在好氧/缺氧轉換過程中,有利于保持活性,從沉淀池回流的污泥第二回流比(R2)控制在0~200%,從厭氧氨氧化反應器到硝化池(3)的污水第三回流比(R3)控制在0~500%;
步驟5)反硝化池(2)出水進入沉淀池(4),泥水分離,以截留污泥,同時該沉淀池采用MBR膜截留的形式;
步驟6)沉淀池出水進入厭氧氨氧化反應器(5),以去除廢水中的氨氮,該工藝段由三部分組成:厭氧氨氧化反應器(21)、旋流器(25)和污泥濃縮池(26);
步驟7)厭氧氨氧化反應器(5)的出水進入產水池(6),部分產水回流到前述的硝化池(3),第三回流比(R3)控制在0~500%。
2.根據權利要求1所述的方法,其特征在于:從所述步驟2到步驟7的工藝流程前端增加水解酸化或/和厭氧工藝環節。
3.根據權利要求1所述的方法,其特征在于:從所述步驟2到步驟7的工藝后端增加過濾或/和混凝沉淀工藝環節。
4.根據權利要求1所述的方法,其特征在于:在所述硝化池(3)、反硝化池(2)、厭氧氨氧化反應器(5)中增加填料以提高污泥濃度,在厭氧氨氧化反應器(5)啟動初期接種厭氧氨氧化菌種,以縮短調試周期。
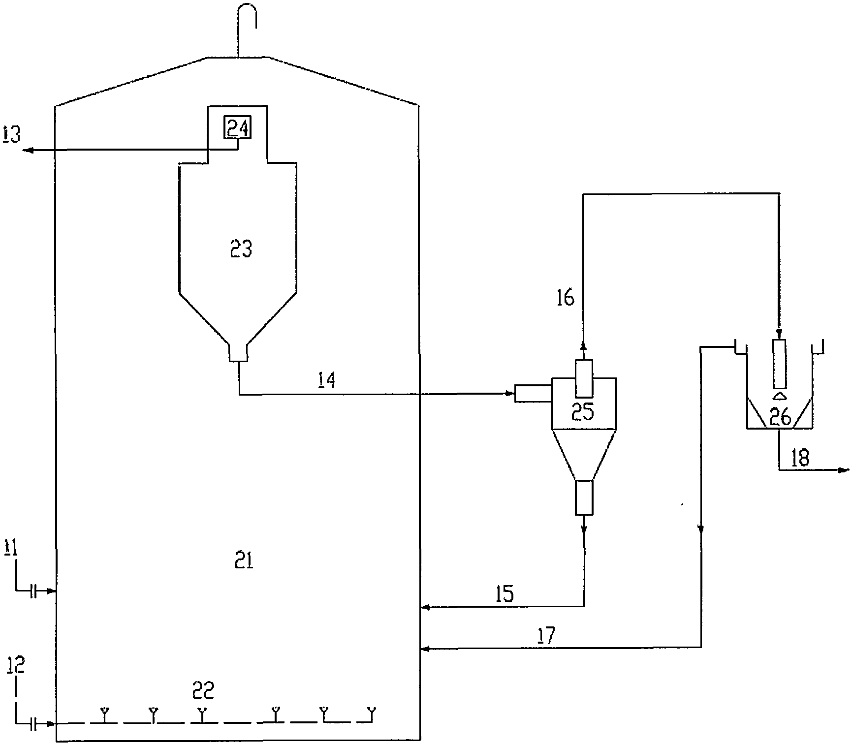
5.一種處理市政污泥厭氧消化液的設備,其特征在于:包括厭氧氨氧化反應器(21),所述厭氧氨氧化反應器(21)內設置有厭氧氨氧化泥水分離設備(23),所述厭氧氨氧化泥水分離設備(23)頂部設置有厭氧氨氧化出水設備(24),厭氧氨氧化出水設備(24)連通有氨氧化出水管路(13),所述厭氧氨氧化泥水分離設備(23)底部通過氨氧化污泥管路(14)連通有厭氧氨氧化污泥旋流器設備(25),所述厭氧氨氧化污泥旋流器設備(25)頂部通過旋流器污泥排放管路(16)連通有厭氧氨氧化污泥濃縮設備(26)、底部通過旋流器污泥回流管路(15)連通至所述厭氧氨氧化反應器(21),所述厭氧氨氧化污泥濃縮設備(26)頂部通過濃縮池污水回流管路(17)連通至所述厭氧氨氧化反應器(21)內、底部連接有濃縮池污泥排放管路(18),所述厭氧氨氧化反應器(21)還連接有氨氧化進水管路(11)和氨氧化充氧管路(12),氨氧化充氧管路(12)連接在所述厭氧氨氧化反應器(21)底部,并與設置在所述厭氧氨氧化反應器(21)底部的厭氧氨氧化曝氣設備(22)連接。
說明書
處理市政污泥厭氧消化液的方法及其設備
技術領域
本發明屬于環境保護技術領域,特別是涉及一種處理市政污泥厭氧消化液的方法及其設備。
背景技術
隨著市政污水處理設施的普及、處理率的提高和處理程度的深化,市政污水廠的污泥產生量有較大的增長,由此引起的二次污染問題已經越來越嚴重。城市污水廠的污泥是指處理污水所產生的固態、半固態及液態的廢棄物,含有大量的有機物、重金屬以及致病菌和病原菌等,不加處理任意排放,會對環境造成嚴重的污染。對污泥處理總的要求是穩定化、無害化和減量化。
國內外污泥處理與處置的方法很多,一般采用濃縮、消化、脫水、干化、有效利用(農用、建材等)、填埋及焚燒等,或用其中幾個方法組合處置。應該說,對污水廠污泥的處理和處置,我們與先進國家相比,差距較大。
污泥穩定處理有好氧和厭氧之分,好氧穩定有很多優點,但能耗很高,只有當污泥量較少時才采用。污泥厭氧穩定處理通常采用中溫(35℃)和高溫(55℃)兩種厭氧消化方法。國內已有很多座大型污水處理廠采用此方法,污泥經消化后,有機物含量減少,性能穩定,總體積減少,污泥消化過程中還產生大量沼氣可回收利用。
污泥厭氧消化裝置工藝復雜,一次性投資大,運行有難度。從已建消化池的實際運行看,只有少數達到預期的效果。有管理、設計問題,亦有沼氣利用的經濟性和安全性問題。但近年來,隨著國家對污泥處理的重視,厭氧消化工藝設備的成熟,以及對厭氧消化有經驗的技術、運營、管理人員的增加,污泥厭氧消化處理設施呈現增加的趨勢。
近些年一些污泥預處理的高溫熱水解、高溫熱堿解技術在國內外發明出來并應用于工程實踐,經過高溫熱水解預處理污泥破壁后,污泥的厭氧消化變得更容易,產氣量增加很多,這促進了大家對污泥厭氧消化處理的積極性。但是帶來的另一個不可忽視的問題就是厭氧消化液的處理難度增加。
污泥消化液一般具有以下特點:
1、氨氮濃度高。一般污泥消化液的氨氮濃度為500~1500mg/L,而經過高溫熱水解處理的污泥,消化液的氨氮濃度在2500~4000mg/L,這么高的濃度如果采用普通的生化處理,會存在較大的處理難度,而采用如吹脫和蒸汽氣提的處理方法,運行費用高業主難以承受。污泥消化液的氨氮總量會占到一個污水處理廠氨氮總量的20~80%,如果將這些污泥消化液回流到市政污水處理系統,會造成系統負荷增加很多,因此建議污泥消化液單獨處理。
2、碳氮比失衡。污泥消化液的COD/TN比例一般在1.0~4.0之間,采用普通的“硝化-反硝化”工藝需要充足的曝氣并投加大量的碳源、堿才能將消化液中的總氮去除,這個費用高到大部分污水處理廠難以承受。
“厭氧氨氧化菌”(anaerobic ammonium oxidation,Anammox)是一類特殊的工程細菌,通過生物化學反應,它們可以將污水中所含有的氨氮和亞硝態氮轉化為氮氣去除。而且轉化過程中這種細菌不需要氧氣、不需要碳源,因此基于“厭氧氨氧化”機理的生物脫氮技術具有巨大的優勢。針對污泥消化液的以上特點,基于“厭氧氨氧化”生物脫氮機理,設計出能同時兼顧有機物去除和高效氨氮/總氮去除的工藝,是本發明的重點。
發明內容
本發明的目的在于克服現有技術存在的以上問題,提供一種處理市政污泥厭氧消化液的方法及其設備,以解決污泥消化液有機物和氨氮/總氮達標的要求。
為實現上述技術目的,達到上述技術效果,本發明通過以下技術方案實現:
一種處理市政污泥厭氧消化液的方法,包括如下步驟:
步驟1)污泥消化液進入調節池,攪拌勻化,攪拌方式采用機械攪拌或曝氣攪拌;
步驟2)用泵或重力流從調節池提升進入反硝化池,計量流量;
步驟3)在反硝化池中,原水中的有機物和來自前面硝化池的硝態氮發生反硝化反應,生成氮氣,同時有機物得到去除,反硝化池部分混合液也可以回流到硝化池中,以進一步去除有機物,反硝化池到硝化池的第一回流比控制在0~500%;
步驟4)硝化池接受來自厭氧氨氧化反應器的回流污水和沉淀池的回流污泥,利用硝化菌的作用將厭氧氨氧化反應器未反應完全的氨氮轉化為硝態氮,同時沉淀池回流的污泥在好氧/缺氧轉換過程中,有利于保持活性,從沉淀池回流的污泥第二回流比控制在0~200%,從厭氧氨氧化反應器到硝化池的污水第三回流比控制在0~500%:
步驟5)反硝化池出水進入沉淀池,泥水分離,以截留污泥,同時該沉淀池采用MBR膜截留的形式;
步驟6)沉淀池出水進入厭氧氨氧化反應器,以去除廢水中的氨氮,該工藝段由三部分組成:厭氧氨氧化反應器、旋流器和污泥濃縮池;
步驟7)厭氧氨氧化反應器的出水進入產水池,部分產水回流到前述的硝化池,第三回流比控制在0~500%。
優選的,從所述步驟到步驟的工藝流程前端增加水解酸化或/和厭氧工藝環節。
優選的,從所述步驟到步驟的工藝后端增加過濾或/和混凝沉淀工藝環節。
優選的,在所述硝化池、反硝化池、厭氧氨氧化反應器中增加填料以提高污泥濃度,在厭氧氨氧化反應器啟動初期接種厭氧氨氧化菌種,以縮短調試周期。
一種處理市政污泥厭氧消化液的設備,包括厭氧氨氧化反應器,所述厭氧氨氧化反應器內設置有厭氧氨氧化泥水分離設備,所述厭氧氨氧化泥水分離設備頂部設置有厭氧氨氧化出水設備,厭氧氨氧化出水設備連通有氨氧化出水管路,所述厭氧氨氧化泥水分離設備底部通過氨氧化污泥管路連通有厭氧氨氧化污泥旋流器設備,所述厭氧氨氧化污泥旋流器設備頂部通過旋流器污泥排放管路連通有厭氧氨氧化污泥濃縮設備、底部通過旋流器污泥回流管路連通至所述厭氧氨氧化反應器,所述厭氧氨氧化污泥濃縮設備頂部通過濃縮池污水回流管路連通至所述厭氧氨氧化反應器內、底部連接有濃縮池污泥排放管路,所述厭氧氨氧化反應器還連接有氨氧化進水管路和氨氧化充氧管路,氨氧化充氧管路連接在所述厭氧氨氧化反應器底部,并與設置在所述厭氧氨氧化反應器底部的厭氧氨氧化曝氣設備連接。
本發明的有益效果是:
本發明是針對污泥消化液的有機物和氨氮/總氮達標的要求而設計的工藝流程,其工藝包括了“硝化-反硝化-沉淀”的技術環節和“厭氧氨氧化反應器”的工藝環節,其中前者的主要目標是降解有機物和殘余的氨氮/總氮,后者的主要目標是降解廢水中的氨氮/總氮。整個工藝過程都采用微生物技術,由于采用了厭氧氨氧化技術,和普通“硝化-反硝化”工藝相比,總氮脫除率高,運行費用低。
上述說明僅是本發明技術方案的概述,為了能夠更清楚了解本發明的技術手段,并可依照說明書的內容予以實施,以下以本發明的較佳實施例并配合附圖詳細說明如后。本發明的具體實施方式由以下實施例及其附圖詳細給出。







