公布日:2023.10.20
申請日:2023.08.02
分類號:C02F11/13(2019.01)I;F26B11/04(2006.01)I;F26B21/00(2006.01)I;F26B25/02(2006.01)I;F26B25/16(2006.01)I
摘要
本發明屬于污泥處理技術領域,具體是指一種基于空氣能熱泵的污泥深度干化裝置,包括烘干主體、旋轉機構、防堵塞污泥翻動機構和空氣能加熱機構,所述防堵塞污泥翻動機構設于烘干主體內,所述空氣能加熱機構設于烘干主體上,所述旋轉機構設于烘干主體的外側;本發明提供了一種基于空氣能熱泵的污泥深度干化裝置,通過空氣能加熱機構,能夠節約能源,提高能效,由于熱泵可以回收干燥廢氣中的熱量,同時利用低溫干燥條件,可以有效降低干燥過程中的能耗水平,同時受外界環境溫度、濕度影響小,地域適應性強。

權利要求書
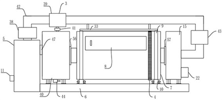
1.一種基于空氣能熱泵的污泥深度干化裝置,包括烘干主體(1)和旋轉機構(4),其特征在于:所述基于空氣能熱泵的污泥深度干化裝置還包括防堵塞污泥翻動機構(2)和空氣能加熱機構(3),所述防堵塞污泥翻動機構(2)設于烘干主體(1)內,所述空氣能加熱機構(3)設于烘干主體(1)上,所述旋轉機構(4)設于烘干主體(1)的外側;所述防堵塞污泥翻動機構(2)包括翻滾驅動組件(12)、污泥干燥通氣組件(13)和清潔組件(14),所述翻滾驅動組件(12)設于烘干主體(1)內,所述污泥干燥通氣組件(13)設于翻滾驅動組件(12)上,所述清潔組件(14)設于污泥干燥通氣組件(13)上。
2.根據權利要求1所述的一種基于空氣能熱泵的污泥深度干化裝置,其特征在于:所述烘干主體(1)包括設備箱(5)、底盤(6)、烘干滾筒(7)、開合門(8)、支撐圓環(9)、滾軸(10)和進氣口(11),所述設備箱(5)設于烘干主體(1)的左側,所述底盤(6)設于設備箱(5)的右側,所述滾軸(10)設于底盤(6)上,所述支撐圓環(9)轉動設于滾軸(10)的上端,所述烘干滾筒(7)套接設于支撐圓環(9)上,所述進氣口(11)設于設備箱(5)的左側下端,所述開合門(8)開合設于烘干滾筒(7)上。
3.根據權利要求2所述的一種基于空氣能熱泵的污泥深度干化裝置,其特征在于:所述翻滾驅動組件(12)包括動力腔(15)、電機一(16)、錐齒輪一(17)、錐齒輪二(18)、驅動管(19)、通氣孔一(20)、軸承(21)、氣泵(22)、通氣管(23)和驅動軸(58),所述動力腔(15)設于底盤(6)的上側右端,所述電機一(16)設于動力腔(15)的外側上端,所述驅動軸(58)的上端設于電機一(16)的輸出端,所述錐齒輪一(17)設于驅動軸(58)的下端,所述烘干滾筒(7)的右端貫通轉動設于動力腔(15)的左側壁上,所述驅動管(19)設于烘干輔助組件(37)上,所述錐齒輪二(18)貫通設于驅動管(19)的右端,所述錐齒輪一(17)和錐齒輪二(18)嚙合轉動相連,所述軸承(21)貫通設于錐齒輪二(18)的右端,所述氣泵(22)設于動力腔(15)的右側壁下端,所述通氣管(23)的一端設于氣泵(22)的輸出端,所述通氣管(23)的另一端貫通設于軸承(21)的右端,所述通氣孔一(20)設于驅動管(19)上。
4.根據權利要求3所述的一種基于空氣能熱泵的污泥深度干化裝置,其特征在于:所述污泥干燥通氣組件(13)包括隔板(24)、通氣腔(25)、六棱通氣孔(26)、長棱通氣孔(27)、挖塊(28)和刮刀(29),所述隔板(24)套接設于驅動管(19)上,所述通氣腔(25)設于隔板(24)內,所述六棱通氣孔(26)設于隔板(24)上,所述長棱通氣孔(27)設于隔板(24)上,所述挖塊(28)設于隔板(24)的前后壁上,所述刮刀(29)設于隔板(24)的側壁上。
5.根據權利要求4所述的一種基于空氣能熱泵的污泥深度干化裝置,其特征在于:所述清潔組件(14)包括噴氣孔(30)、滑桿(31)、磁塊一(32)、磁塊二(33)、鏟刀一(34)和鏟刀二(35),所述噴氣孔(30)設于六棱通氣孔(26)的內壁上,所述滑桿(31)的一端設于長棱通氣孔(27)的內部上端,所述滑桿(31)的另一端設于長棱通氣孔(27)的下端,所述磁塊一(32)滑動套接設于滑桿(31)上,所述鏟刀一(34)設于磁塊一(32)的上端,所述鏟刀二(35)設于磁塊一(32)的下端,所述磁塊二(33)設于空氣能加熱機構(3)上,所述磁塊二(33)的下端和磁塊一(32)的上端磁性相同。
6.根據權利要求5所述的一種基于空氣能熱泵的污泥深度干化裝置,其特征在于:所述空氣能加熱機構(3)包括熱量循環組件(36)和烘干輔助組件(37),所述熱量循環組件(36)設于烘干主體(1)上,所述烘干輔助組件(37)設于烘干主體(1)內。
7.根據權利要求6所述的一種基于空氣能熱泵的污泥深度干化裝置,其特征在于:所述熱量循環組件(36)包括壓縮機(38)、冷凝器(39)、蒸發器(40)、膨脹閥(41)、氣流循環管(42)、風機(43)和排水閥(44),所述壓縮機(38)的進氣端貫通設于設備箱(5)的上端,所述氣流循環管(42)的一端貫通設于壓縮機(38)的輸出端,所述氣流循環管(42)的另一端貫通設于動力腔(15)的側壁右端,所述冷凝器(39)設于氣流循環管(42)上,所述膨脹閥(41)設于冷凝器(39)的下端,所述蒸發器(40)設于膨脹閥(41)的下端,所述風機(43)設于氣流循環管(42)上,所述排水閥(44)設于蒸發器(40)的下端,所述烘干滾筒(7)的左端貫通轉動設于蒸發器(40)的側壁右端。
8.根據權利要求7所述的一種基于空氣能熱泵的污泥深度干化裝置,其特征在于:所述烘干輔助組件(37)包括過濾腔(45)、過濾棉(46)、回流管(47)、濾網一(48)、支撐件一(49)、濾網二(50)和支撐件二(51),所述過濾腔(45)設于設備箱(5)內,所述過濾腔(45)的上端貫通設于熱量循環組件(36)的抽入端,所述過濾棉(46)設于過濾腔(45)內,所述回流管(47)的一端貫通設于過濾腔(45)的右側壁上端,所述回流管(47)的另一端貫通設于蒸發器(40)的側壁左端,所述支撐件一(49)設于烘干滾筒(7)的內部左端,所述驅動管(19)的右端轉動設于支撐件一(49)的側壁上,所述濾網一(48)設于支撐件一(49)上,所述支撐件二(51)設于烘干滾筒(7)的內部右端,所述驅動管(19)轉動套接設于支撐件二(51)上,所述濾網二(50)設于支撐件二(51)上。
9.根據權利要求8所述的一種基于空氣能熱泵的污泥深度干化裝置,其特征在于:所述旋轉機構(4)包括支撐件三(52)、電機二(53)、齒輪三(54)和齒環(55),所述支撐件三(52)設于底盤(6)的后側,所述電機二(53)設于支撐件三(52)上,所述齒輪三(54)設于電機二(53)的輸出端,所述齒環(55)套接設于烘干滾筒(7)上,所述齒輪三(54)和齒環(55)嚙合轉動相連。
10.根據權利要求9所述的一種基于空氣能熱泵的污泥深度干化裝置,其特征在于:所述蒸發器(40)的右側壁設有密封件一(56),所述烘干滾筒(7)的左端轉動套接設于密封件一(56)上,所述動力腔(15)的左側壁設有密封件二(57),所述烘干滾筒(7)的右端轉動套接設于密封件二(57)上,所述六棱通氣孔(26)內設有滑桿二(59),所述滑桿二(59)上設有磁塊三(60),所述磁塊三(60)的上下兩端設有鏟刀三(61),所述磁塊二(33)的下端和磁塊三(60)的上端磁性相同。
發明內容
針對上述情況,為克服現有技術的缺陷,本發明提供了一種基于空氣能熱泵的污泥深度干化裝置,通過空氣能加熱機構,能夠節約能源,提高能效,由于熱泵可以回收干燥廢氣中的熱量,同時利用低溫干燥條件,可以有效降低干燥過程中的能耗水平,同時受外界環境溫度、濕度影響小,地域適應性強,能夠減少污染,提高環保,由于干燥溫度在100°C以下的低溫干燥條件下可以避免帶臭味的有機物揮發,同時閉式熱風循環也可顯著降低系統內循環空氣的外溢,因此一般可不做尾氣、廢水的處理。
本發明采取的技術方案如下:本發明提供了一種基于空氣能熱泵的污泥深度干化裝置,包括烘干主體、旋轉機構、防堵塞污泥翻動機構和空氣能加熱機構,所述防堵塞污泥翻動機構設于烘干主體內,所述空氣能加熱機構設于烘干主體上,所述旋轉機構設于烘干主體的外側;所述防堵塞污泥翻動機構包括翻滾驅動組件、污泥干燥通氣組件和清潔組件,所述翻滾驅動組件設于烘干主體內,所述污泥干燥通氣組件設于翻滾驅動組件上,所述清潔組件設于污泥干燥通氣組件上。
進一步地,所述烘干主體包括設備箱、底盤、烘干滾筒、開合門、支撐圓環、滾軸和進氣口,所述設備箱設于烘干主體的左側,所述底盤設于設備箱的右側,所述滾軸設于底盤上,所述支撐圓環轉動設于滾軸的上端,所述烘干滾筒套接設于支撐圓環上,所述進氣口設于設備箱的左側下端,所述開合門開合設于烘干滾筒上。
進一步地,所述翻滾驅動組件包括動力腔、電機一、錐齒輪一、錐齒輪二、驅動管、通氣孔一、軸承、氣泵、通氣管和驅動軸,所述動力腔設于底盤的上側右端,所述電機一設于動力腔的外側上端,所述驅動軸的上端設于電機一的輸出端,所述錐齒輪一設于驅動軸的下端,所述烘干滾筒的右端貫通轉動設于動力腔的左側壁上,所述驅動管設于烘干輔助組件上,所述錐齒輪二貫通設于驅動管的右端,所述錐齒輪一和錐齒輪二嚙合轉動相連,所述軸承貫通設于錐齒輪二的右端,所述氣泵設于動力腔的右側壁下端,所述通氣管的一端設于氣泵的輸出端,所述通氣管的另一端貫通設于軸承的右端,所述通氣孔一設于驅動管上。
進一步地,所述污泥干燥通氣組件包括隔板、通氣腔、六棱通氣孔、長棱通氣孔、挖塊和刮刀,所述隔板套接設于驅動管上,所述通氣腔設于隔板內,所述六棱通氣孔設于隔板上,所述長棱通氣孔設于隔板上,所述挖塊設于隔板的前后壁上,所述刮刀設于隔板的側壁上。
進一步地,所述清潔組件包括噴氣孔、滑桿、磁塊一、磁塊二、鏟刀一和鏟刀二,所述噴氣孔設于六棱通氣孔的內壁上,所述滑桿的一端設于長棱通氣孔的內部上端,所述滑桿的另一端設于長棱通氣孔的下端,所述磁塊一滑動套接設于滑桿上,所述鏟刀一設于磁塊一的上端,所述鏟刀二設于磁塊一的下端,所述磁塊二設于空氣能加熱機構上,所述磁塊二的下端和磁塊一的上端磁性相同。
進一步地,所述空氣能加熱機構包括熱量循環組件和烘干輔助組件,所述熱量循環組件設于烘干主體上,所述烘干輔助組件設于烘干主體內。
進一步地,所述熱量循環組件包括壓縮機、冷凝器、蒸發器、膨脹閥、氣流循環管、風機和排水閥,所述壓縮機的進氣端貫通設于設備箱的上端,所述氣流循環管的一端貫通設于壓縮機的輸出端,所述氣流循環管的另一端貫通設于動力腔的側壁右端,所述冷凝器設于氣流循環管上,所述膨脹閥設于冷凝器的下端,所述蒸發器設于膨脹閥的下端,所述風機設于氣流循環管上,所述排水閥設于蒸發器的下端,所述烘干滾筒的左端貫通轉動設于蒸發器的側壁右端。
進一步地,所述烘干輔助組件包括過濾腔、過濾棉、回流管、濾網一、支撐件一、濾網二和支撐件二,所述過濾腔設于設備箱內,所述過濾腔的上端貫通設于熱量循環組件的抽入端,所述過濾棉設于過濾腔內,所述回流管的一端貫通設于過濾腔的右側壁上端,所述回流管的另一端貫通設于蒸發器的側壁左端,所述支撐件一設于烘干滾筒的內部左端,所述驅動管的右端轉動設于支撐件一的側壁上,所述濾網一設于支撐件一上,所述支撐件二設于烘干滾筒的內部右端,所述驅動管轉動套接設于支撐件二上,所述濾網二設于支撐件二上。
進一步地,所述旋轉機構包括支撐件三、電機二、齒輪三和齒環,所述支撐件三設于底盤的后側,所述電機二設于支撐件三上,所述齒輪三設于電機二的輸出端,所述齒環套接設于烘干滾筒上,所述齒輪三和齒環嚙合轉動相連。
進一步地,所述蒸發器的右側壁設有密封件一,所述烘干滾筒的左端轉動套接設于密封件一上,所述動力腔的左側壁設有密封件二,所述烘干滾筒的右端轉動套接設于密封件二上,所述六棱通氣孔內設有滑桿二,所述滑桿二上設有磁塊三,所述磁塊三的上下兩端設有鏟刀三,所述磁塊二的下端和磁塊三的上端磁性相同。
采用上述結構本發明取得的有益效果如下:本發明提供了一種基于空氣能熱泵的污泥深度干化裝置,實現了如下有益效果:為了解決現有的污泥干化設備由于其占地面積達、處理周期長、受天氣變化影響大,較難廣泛應用的問題,本發明通過空氣能加熱機構,能夠節約能源,提高能效,由于熱泵可以回收干燥廢氣中的熱量,同時利用低溫干燥條件,可以有效降低干燥過程中的能耗水平,同時受外界環境溫度、濕度影響小,地域適應性強。
通過空氣能加熱機構,能夠減少污染,提高環保。由于干燥溫度在100°C以下的低溫干燥條件下可以避免帶臭味的有機物揮發,同時閉式熱風循環也可顯著降低系統內循環空氣的外溢,因此一般可不做尾氣、廢水的處理。
通過空氣能加熱機構,能夠保持污泥的有機質,提高資源化,污泥干燥過程中由于溫度不高,其有機質損失小,利用潛力大。
通過空氣能加熱機構,能夠提高系統的安全性,降低風險,污泥干燥過程中運行環境溫度不高,在合理控制風速的條件下又可避免揚塵,熱泵污泥干燥系統完全可以滿足污泥干燥的安全要求,從而大大提高系統運行的安全性。
為了進一步提高實用性和可推廣性,本發明提出了防堵塞污泥翻動機構,通過污泥干燥通氣組件使得污泥干燥的更加均勻。
刮刀可對烘干滾筒的內壁進行清潔,防止污泥干燥后蘸在烘干滾筒的內壁上。
隔板的設置,增加污泥與滾筒壁的接觸面積,提高傳熱效率。
過濾棉的作用是初次供氣時對空氣進行過濾。
噴氣孔的設置,可將松動的污泥沖出六棱通氣孔。
隔板在轉動的過程中,磁塊一在沒有堵塞的情況下,在滑桿上來回滑動,當長棱通氣孔被堵塞時,磁塊一運動至上端時,磁塊一和磁塊二相斥,從而推動鏟刀二將污泥疏通。
(發明人:張叢;王祥宇;孟曉雷)






