公布日:2023.10.24
申請日:2023.07.31
分類號:C02F1/52(2023.01)I;C02F101/20(2006.01)N
摘要
本發明公開了一種含有重金屬離子的廢水處理設備,涉及廢水處理領域,包括外殼,所述外殼的內部設置有混合機構,所述混合機構包括設置在外殼內部的輸料組件,所述外殼的內部設置有輔助組件。該含有重金屬離子的廢水處理設備,通過中空管、導通管以及排料管的相互配合,可以對吸氣送料管所送入的金屬沉淀劑粉末自下而上噴灑至廢水處理設備中,并通過攪拌葉對進入后的粉末進行豎直方向攪動,通過攪拌板對進入后的粉末進行水平方向攪動,且通過錐刺對粉末進入后形成的氣泡進行破開,從而使得進入后的粉末可以快速且充分地被擴散至設備中,使其與廢水中的重金屬離子更為充分且高效的反應,使得重金屬離子的除去效率更高。

權利要求書
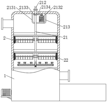
1.一種含有重金屬離子的廢水處理設備,包括外殼(1),其特征在于,所述外殼(1)的內部設置有混合機構(2),所述混合機構(2)包括設置在外殼(1)內部的輸料組件(21),所述外殼(1)的內部設置有輔助組件(22);所述輸料組件(21)包括轉動連接在外殼(1)內側面的中空管(211),所述中空管(211)的頂部轉動連接有吸氣送料管(212),所述中空管(211)的外部設置有驅動單元(213),所述中空管(211)的外部固定連接有若干導通管(214),所述導通管(214)的頂面固定連接有若干排料管(215);所述輔助組件(22)包括轉動連接在外殼(1)內側面的轉動軸(221),所述轉動軸(221)的外部設置有若干攪拌葉(222),所述攪拌葉(222)的表面設置有若干錐刺(223),所述轉動軸(221)的外部設置有傳動單元(224),所述轉動軸(221)與中空管(211)的外壁之間設置有連接單元(225),所述中空管(211)的外部固定連接有若干攪拌板(226)。
2.根據權利要求1所述的一種含有重金屬離子的廢水處理設備,其特征在于,所述驅動單元(213)包括固定連接在外殼(1)內側面的安裝箱(2131),所述安裝箱(2131)的內側面固定安裝有電機(2132),所述電機(2132)輸出軸與中空管(211)的外部均固定連接有帶輪(2133),兩個所述帶輪(2133)之間傳動連接有傳動帶(2134),所述中空管(211)與安裝箱(2131)的內側面轉動連接。
3.根據權利要求1所述的一種含有重金屬離子的廢水處理設備,其特征在于,所述導通管(214)與中空管(211)內部相連通,所述排料管(215)與導通管(214)相連通,所述攪拌葉(222)的位置以及尺寸均與排料管(215)相對應。
4.根據權利要求1所述的一種含有重金屬離子的廢水處理設備,其特征在于,所述傳動單元(224)包括固定連接在攪拌板(226)底部的齒環(2241),所述轉動軸(221)的外部固定連接有傳動齒輪(2242),所述傳動齒輪(2242)與齒環(2241)嚙合。
5.根據權利要求1所述的一種含有重金屬離子的廢水處理設備,其特征在于,所述連接單元(225)包括固定連接在中空管(211)外部的工型環(2251),所述工型環(2251)的內側面轉動連接有卡塊(2252),所述卡塊(2252)的頂部設置有限制翼板(2253),所述轉動軸(221)的一端與外殼(1)內側面轉動連接,所述轉動軸(221)的另一端與卡塊(2252)轉動連接,所述卡塊(2252)靠近中空管(211)的一側表面形狀為圓弧狀。
6.根據權利要求1所述的一種含有重金屬離子的廢水處理設備,其特征在于,所述排料管(215)的外部設置有封閉機構(3),所述封閉機構(3)包括對稱開設在排料管(215)頂面的導向槽(31),所述導向槽(31)的內側面滑動連接有導向塊(32),所述導向塊(32)的頂部固定連接有封閉板(33),所述導向塊(32)與導向槽(31)內壁之間固定連接有復位彈簧(34),兩個所述封閉板(33)相互靠近的一側均設置有斜面部(35)。
7.根據權利要求6所述的一種含有重金屬離子的廢水處理設備,其特征在于,所述斜面部(35)靠近導向槽(31)的一側向下傾斜,兩個所述封閉板(33)相互靠近的一側均固定連接有密封墊(36)。
8.根據權利要求6所述的一種含有重金屬離子的廢水處理設備,其特征在于,兩個所述封閉板(33)的組合形狀以及組合后的尺寸值均與排料管(215)相對應。
發明內容
本發明的目的是提供一種含有重金屬離子的廢水處理設備,以解決現有技術中的上述不足之處。
為了實現上述目的,本發明提供如下技術方案:一種含有重金屬離子的廢水處理設備,包括外殼,所述外殼的內部設置有混合機構,所述混合機構包括設置在外殼內部的輸料組件,所述外殼的內部設置有輔助組件;
所述輸料組件包括轉動連接在外殼內側面的中空管,所述中空管的頂部轉動連接有吸氣送料管,所述中空管的外部設置有驅動單元,所述中空管的外部固定連接有若干導通管,所述導通管的頂面固定連接有若干排料管;
所述輔助組件包括轉動連接在外殼內側面的轉動軸,所述轉動軸的外部設置有若干攪拌葉,所述攪拌葉的表面設置有若干錐刺,所述轉動軸的外部設置有傳動單元,所述轉動軸與中空管的外壁之間設置有連接單元,所述中空管的外部固定連接有若干攪拌板。
進一步地,所述驅動單元包括固定連接在外殼內側面的安裝箱,所述安裝箱的內側面固定安裝有電機,所述電機輸出軸與中空管的外部均固定連接有帶輪,兩個所述帶輪之間傳動連接有傳動帶,所述中空管與安裝箱的內側面轉動連接。
進一步地,所述導通管與中空管內部相連通,所述排料管與導通管相連通,所述攪拌葉的位置以及尺寸均與排料管相對應,使得攪拌葉可以對排料管處排出的粉末狀金屬沉淀劑進行充分混合攪拌。
進一步地,所述傳動單元包括固定連接在攪拌板底部的齒環,所述轉動軸的外部固定連接有傳動齒輪,所述傳動齒輪與齒環嚙合。
進一步地,所述連接單元包括固定連接在中空管外部的工型環,所述工型環的內側面轉動連接有卡塊,所述卡塊的頂部設置有限制翼板,所述轉動軸的一端與外殼內側面轉動連接,所述轉動軸的另一端與卡塊轉動連接,所述卡塊靠近中空管的一側表面形狀為圓弧狀。
進一步地,所述排料管的外部設置有封閉機構,所述封閉機構包括對稱開設在排料管頂面的導向槽,所述導向槽的內側面滑動連接有導向塊,所述導向塊的頂部固定連接有封閉板,所述導向塊與導向槽內壁之間固定連接有復位彈簧,兩個所述封閉板相互靠近的一側均設置有斜面部。
進一步地,所述斜面部靠近導向槽的一側向下傾斜,使得斜面部受到外力推動時,使得封閉板可以受到水平方向,且使得兩個封閉板相互分離的分力,從而兩個封閉板可以相互遠離將排料管的頂部打開,兩個所述封閉板相互靠近的一側均固定連接有密封墊,使得兩個封閉板接觸面之間的密封性更好。
進一步地,兩個所述封閉板的組合形狀以及組合后的尺寸值均與排料管相對應,使得在正常使用狀態下,封閉板可以對導向槽進行遮擋,并且,在兩個封閉板的配合作用下,可以對排料管的排料端口進行封閉,使得廢水處理箱中的廢水不會大量進入排料管、導通管以及中空管中,從而可以有效避免大量廢水直接在排料管、導通管以及中空管直接反應形成沉淀的情況發生,可以很好防止排料管、導通管以及中空管內部堵塞。
與現有技術相比,本發明提供的一種含有重金屬離子的廢水處理設備,具有以下有益效果:
1、該含有重金屬離子的廢水處理設備,通過中空管、導通管以及排料管的相互配合,可以對吸氣送料管所送入的金屬沉淀劑粉末自下而上噴灑至廢水處理設備中,并通過攪拌葉對進入后的粉末進行豎直方向攪動,通過攪拌板對進入后的粉末進行水平方向攪動,且通過錐刺對粉末進入后形成的氣泡進行破開,從而使得進入后的粉末可以快速且充分地被擴散至設備中,使其與廢水中的重金屬離子更為充分且高效的反應,使得重金屬離子的除去效率更高。
2、該含有重金屬離子的廢水處理設備,通過復位彈簧、導向塊、導向槽以及斜面部之間的相互,使得封閉板受到垂直于其底面向上的推力時,其可以水平移動將排料管的頂部打開進行粉末的正常排出,并且在粉末不再排出時快速反應復位對其頂端進行封閉,可以減少廢水進入排料管、導通管以及中空管中的量,從而可以有效避免大量廢水直接進入排料管、導通管以及中空管內部與金屬沉淀劑粉末接觸反應形成沉淀導致排料管、導通管以及中空管內部出現堵塞的情況發生。
(發明人:鐘思泉;伍靜瑩;鐘深寶)






