公布日:2024.02.06
申請日:2023.11.29
分類號:B01D29/33(2006.01)I;B01D29/56(2006.01)I;B01D29/66(2006.01)I
摘要
本發明公開了一種垃圾車污水箱過濾清洗裝置及方法,裝置包括水箱、進水口、排水口、隔板,進水口和排水口上下設置于水箱一側,隔板將水箱上下分隔為污水倉和凈水倉,污水倉包括過濾清洗裝置,過濾清洗裝置包括噴水架、過濾清洗框架、過濾網和軸承,噴水架通過軸承與過濾清洗裝置轉動連接,噴水架可以通過軸承實現旋轉,過濾清洗框架頂部與水箱固定,中部貫穿過濾網,底部與隔板連接,凈水倉包括水泵、出水管和回水管,噴水架經出水管連接至水泵,潛水泵固定在凈水倉底部,回水管經水泵經隔板連接至凈水倉;方法包括過濾、清洗濾網、凈水等步驟,垃圾車在車上就可以處理污水,提高裝載效率,保護環境。

權利要求書
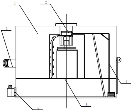
1.一種垃圾車污水箱過濾清洗裝置,其特征在于,包括水箱(1)、進水口(3)、排水口(5)、隔板(6),所述進水口(3)和排水口(5)上下設置于水箱(1)一側,所述隔板(6)將水箱(1)上下分隔為污水倉和凈水倉,所述污水倉包括過濾清洗裝置(2),所述過濾清洗裝置(2)包括噴水架(21)、過濾清洗框架、過濾網和軸承(28),所述噴水架(21)通過軸承(28)與過濾清洗裝置(2)轉動連接,所述過濾清洗框架頂部與水箱固定,中部貫穿過濾網,底部與隔板(6)連接,所述凈水倉包括水泵(41)、出水管(42)和回水管(44),所述噴水架(21)經出水管(42)連接至水泵(41),所述潛水泵(41)固定在凈水倉底部,所述回水管(44)經水泵(41)經隔板(6)連接至凈水倉。
2.根據權利要求1所述的一種垃圾車污水箱過濾清洗裝置,其特征在于,所述過濾清洗框架包括頂架(23)、固定架(24)和浮架(25),所述的頂架(23)與水箱固定,所述固定架(24)貫穿粗濾網(26)頂部,所述浮架(25)設置于精濾網(27)頂部,所述過濾網包括粗濾網(26)和精濾網(27),所述粗濾網(26)安裝于隔板(6)上方污水倉內,所述精濾網(27)安裝在精濾網(26)內,所述粗濾網(26)和精濾網(27)底部均安裝于隔板(6)上,所述回水管(44)通過接頭安裝在出水管(42)一側,另外一端固定在隔板(6)上,所述回水管(44)于隔板(6)位置處設有與凈水倉貫通的孔,且回水管(44)于污水倉的位置高于出水管,所述支架(43)一端固定在隔板(6)上,另一端固定在出水管(42)上,且呈三角狀。
3.根據權利要求2所述的一種垃圾車污水箱過濾清洗裝置,其特征在于,所述過濾清洗裝置(2)還包括噴水固定架(22),所述噴水固定架(22)包括連接桿(221)、頂塞(222)、導水槽(223)、O型圈(224)和通水槽(225),所述導水槽(223)設置于頂塞(222)邊緣,所述噴水架(21)經連接桿(221)連接至噴水固定架(22),所述噴水固定架(22)經過導水槽(223)可拆卸連接至固定架(24),所述通水槽(225)周向分布于固定架(24)內,并連接至噴水架(21),所述固定架(24)內設置有O型圈(224),所述固定架(24)內徑大于O型圈(224)半徑。
4.根據權利要求3所述的一種垃圾車污水箱過濾清洗裝置,其特征在于,所述固定架(24)與噴水固定架(22)通過螺紋連接,所述固定架(24)內有導向槽(242)。
5.根據權利要求2所述的一種垃圾車污水箱過濾清洗裝置,其特征在于,所述浮架(25)包括從下至上依次連接的底板(253)、導向桿(252)和傳動桿(251),所述底板(253)寬度介于導向桿(252)和固定架(24)之間,所述導向桿(252)沿固定架(24)內部的導向槽(242)運動,所述傳動桿(251)在導向槽(242)內頂部設置有槽板(241)。
6.根據權利要求2所述的一種垃圾車污水箱過濾清洗裝置,其特征在于,所述精濾網(27)設有槽徑大于底板(253)直徑的導向板。
7.根據權利要求2所述的一種垃圾車污水箱過濾清洗裝置,其特征在于,所述出水管(42)包括球體(421)、擋板(423)、彈簧(422)、水管(424),所述球體(421)安裝在出水管(42)進水口處,并連接至導水槽(223),所述球體(421)經彈簧(422)連接至擋板(423),所述彈簧(422)彈力介于水泵(41)的出水壓力和回水管(44)的回水壓力之間。
8.根據權利要求1-7任一項所述的一種垃圾車污水箱過濾清洗裝置,其特征在于,所述噴水架(21)包括噴嘴(211)和噴水管(212),所述噴嘴(211)均勻分布在噴水管(212)上,噴射角度為噴嘴(211)口弧形圓的切線方向,所述噴水管(212)底部封閉。
9.一種垃圾車污水箱過濾清洗方法,其特征在于,包括以下步驟:S1:垃圾箱內的污水通過進水口進入水箱(1)上部污水倉;S2:水箱(1)內的污水先后通過粗濾網(26)、精濾網(27)進入水箱(1)下部清水倉;S3:當精濾網(27)堵塞后,精濾網(27)進水和出水速度不平衡,此時在浮板(25)作用下,將水泵(41)出水口與噴水架(21)連通;S4:高壓水進入噴水架(21),噴水架(21)在高壓水的作用下,自動旋轉,并將高壓水噴在濾網上,將濾網清洗干凈。
發明內容
本發明的目的在于提供一種垃圾車污水箱過濾清洗裝置及方法,以解決現有技術中的問題。
為實現上述目的,本發明提供了一種垃圾車污水箱過濾清洗裝置,包括水箱、進水口、排水口、隔板,
所述進水口和排水口上下設置于水箱一側,
所述隔板將水箱上下分隔為污水倉和凈水倉,
所述污水倉包括過濾清洗裝置,
所述過濾清洗裝置包括噴水架、過濾清洗框架、過濾網和軸承,
所述噴水架通過軸承與過濾清洗裝置轉動連接,
噴水架可以通過軸承實現旋轉,
所述過濾清洗框架頂部與水箱固定,中部貫穿過濾網,底部與隔板連接,
所述凈水倉包括水泵、出水管和回水管,
所述噴水架經出水管連接至水泵,
所述潛水泵固定在凈水倉底部,
所述回水管經水泵經隔板連接至凈水倉。
所述過濾清洗框架包括頂架、固定架和浮架,
所述的頂架與水箱固定,
所述固定架貫穿粗濾網頂部,
所述浮架設置于精濾網頂部,
所述過濾網包括粗濾網和精濾網,
所述粗濾網安裝于隔板上方污水倉內,
所述精濾網安裝在精濾網內,
所述粗濾網和精濾網底部均安裝于隔板上,
所述回水管通過接頭安裝在出水管一側,另外一端固定在隔板上,
所述回水管于隔板位置處設有與凈水倉貫通的孔,
且回水管于污水倉的位置高于出水管,所述支架一端固定在隔板上,另一端固定在出水管上,且呈三角狀。
所述過濾清洗裝置還包括噴水固定架,
所述噴水固定架包括連接桿、頂塞、導水槽、O型圈和通水槽,
所述導水槽設置于頂塞邊緣,
所述噴水架經連接桿連接至噴水固定架,所述噴水固定架經過導水槽可拆卸連接至固定架,
所述通水槽周向分布于固定架內,并連接至噴水架,
所述固定架內設置有O型圈,
噴水固定架為可移動設備,所述固定架內徑大于O型圈半徑,避免泄漏。
所述固定架與噴水固定架通過螺紋連接,所述固定架內有導向槽。
所述浮架包括從下至上依次連接的底板、導向桿和傳動桿,
所述底板寬度介于導向桿和固定架之間,所述導向桿沿固定架內部的導向槽運動,所述傳動桿在導向槽內頂部設置有槽板。
所述精濾網設有槽徑大于底板直徑的導向板。
所述出水管包括球體、擋板、彈簧、水管,所述球體安裝在出水管進水口處,并連接至導水槽,所述球體經彈簧連接至擋板,所述彈簧彈力介于水泵的出水壓力和回水管的回水壓力之間。
所述噴水架包括噴嘴和噴水管,所述噴嘴均勻分布在噴水管上,噴射角度為噴嘴口弧形圓的切線方向,所述噴水管底部封閉。
一種垃圾車污水箱過濾清洗方法,包括以下步驟:
S1:垃圾箱內的污水通過進水口進入水箱上部污水倉;
S2:水箱內的污水先后通過粗濾網、精濾網進入水箱下部清水倉;
S3:當精濾網堵塞后,精濾網進水和出水速度不平衡,此時在浮板作用下,將水泵出水口與噴水架連通;
S4:高壓水進入噴水架,噴水架在高壓水的作用下,自動旋轉,并將高壓水噴在濾網上,將濾網清洗干凈。
與現有技術相比,本發明的有益效果為:
1、該壓縮式垃圾車提供了污水箱過濾及清洗的方法,垃圾通過壓縮將液體不斷排入水箱內,污水先后通過粗濾網、精濾網過濾后,將干凈的液體排入凈水箱,將雜質留在了過濾網外,并可以直接排入下水道或者噴灑在路面,這樣即使水箱容積變小,也可以滿足夏季或者多雨季節的使用;
2、隨著過濾時間的增加,過濾網外部雜質越來越多,過濾的效率也會隨著變低,此時污水倉對浮板的浮力越來越大,最后將固定架及噴水固定架推到頂部位置,此時水管的球和導水槽位置重合,球體在彈簧的作用下彈開。從而使潛導水槽和通水槽連通,隨之噴水架在高壓水的作用下轉動,并將高壓水清洗濾網,從而保證濾網的清潔;
隨著濾網的清潔,污水倉的水位持續下降,浮架也隨之下降,噴水固定架及固定架在自身重力的作用下也隨之下移,此時水管前球和導水槽位置錯開,斷開導水槽與通水槽之間的連接,從而斷開高壓水,高壓水將會從回水管直接排回凈水箱。
(發明人:陳桂蘭;朱崗;周玉春;張野華;王伊悅;金豐)






