申請日2015.07.22
公開(公告)日2015.11.18
IPC分類號C02F101/30; C02F9/14
摘要
本發明涉及一種低濃度有機廢水的雙膜內循環生物處理工藝,經格柵和格網除渣后的有機污水進入雙膜內循環生物反應器,經布水裝置均勻分配到填料生物膜反應區,通過氣流的作用在填料生物膜反應區與微濾膜過濾區之間形成內循環,間隙開啟填料生物膜反應區和微濾膜過濾區的進氣電動閥,交替形成厭氧-缺氧-好氧的環境,完成微生物好氧硝化吸磷、缺氧脫氮反應和厭氧放磷反應,達到凈化水質的目的。脫落的生物膜和顆粒物被微濾膜截留,清水透過微濾膜經自吸泵抽吸出來,再經紫外線消毒后即可達標排放。與單純的膜-生物反應器技術相比,本發明充氧能耗降低約50%,跨膜壓差降低,微濾膜的膜通量較高,使用壽命延長;剩余污泥減少。
權利要求書
1.一種低濃度有機廢水的雙膜內循環生物處理工藝,其特征在于,包括以下具體步驟:
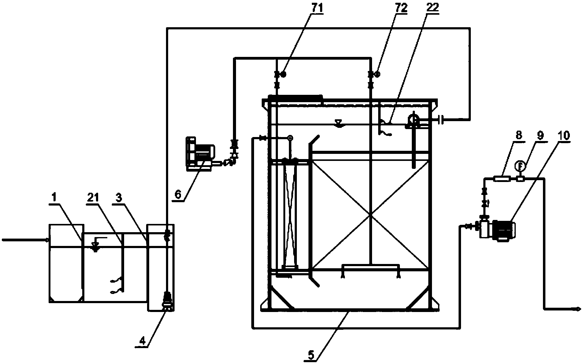
(1)除渣:將低濃度有機廢水經過集水池中的格柵和格網,除去2mm以上的顆粒物和 雜物,避免堵塞后續設備;
(2)使用提升泵將經過除渣后的低濃度有機廢水提升到雙膜內循環生物反應器中,所述 的雙膜內循環生物反應器設有導流板,導流板將雙膜內循環生物反應器分隔為填料生物膜反 應區和微濾膜過濾區,所述的填料生物膜反應區設有生物膜填料和布水裝置,微濾膜過濾區 安裝有浸入式微濾膜組件和集水裝置;填料生物膜反應區和微濾膜過濾區底部均設有曝氣裝 置,兩個曝氣裝置分別通過進氣電動閥與氣泵連接并能夠形成曝氣氣流;低濃度有機廢水通 過曝氣氣流的作用能夠在填料生物膜反應區和微濾膜過濾區之間形成內循環;
低濃度有機廢水經布水裝置均勻地進入填料生物膜反應區,間隙開啟填料生物膜反應區 的進氣電動閥,交替形成厭氧-缺氧-好氧的環境,完成微生物好氧硝化吸磷、缺氧脫氮反應 和厭氧放磷反應,達到脫氮除磷的效果;反應后的低濃度有機廢水在曝氣氣流的作用下在填 料生物膜反應區和微濾膜過濾區之間形成內循環,并流經微濾膜過濾區,脫落的生物膜填料 和顆粒物被浸入式微濾膜組件截留,隨水流返回填料生物膜反應區,清水透過浸入式微濾膜 組件匯入集水裝置,經自吸泵抽吸出來;間隙開啟微濾膜過濾區的進氣電動閥沖洗浸入式微 濾膜組件,避免浸入式微濾膜組件堵塞;
(3)自吸泵抽吸出來的清水流經管道式的紫外線消毒器消毒后即可達標外排;而積累在 雙膜內循環生物反應器底部的污泥半年或一年清理一次即可。
2.根據權利要求1所述的低濃度有機廢水的雙膜內循環生物處理工藝,其特征在于,所 述的集水池中設有第一水位浮球開關,雙膜內循環生物反應器中設有第二水位浮球開關,紫 外消毒器連接玻璃轉子流量計。
3.根據權利要求1所述的低濃度有機廢水的雙膜內循環生物處理工藝,其特征在于,所 述的填料生物膜反應區和微濾膜過濾區的進氣電動閥交替間歇開啟。
4.根據權利要求1所述的低濃度有機廢水的雙膜內循環生物處理工藝,其特征在于,所 述的格網孔徑不超過2mm。
5.根據權利要求1所述的低濃度有機廢水的雙膜內循環生物處理工藝,其特征在于,所 述的雙膜內循環生物反應器中的生物膜填料采用生物接觸氧化法工藝所用的生物膜填料。
6.根據權利要求1所述的低濃度有機廢水的雙膜內循環生物處理工藝,其特征在于,所 述的浸入式微濾膜組件采用浸入式膜-生物反應器組件,浸入式微濾膜組件的微濾膜材質采用 改性聚丙烯、聚偏氟乙烯或聚四氟乙烯,平均膜孔徑為0.1~0.2微米。
7.根據權利要求1所述的低濃度有機廢水的雙膜內循環生物處理工藝,其特征在于,所 述的處理工藝采用觸摸屏和可編程控制器控制,具有遠程通訊和控制接口。
說明書
一種低濃度有機廢水的雙膜內循環生物處理工藝
技術領域
本發明屬于廢水處理技術領域,具體涉及一種低濃度有機廢水的雙膜內循環生物處理工 藝。
背景技術
目前水污染治理的重點之一就是建制鎮的生活污水處理,因此中、小規模的低濃度有機 廢水處理技術得到進一步發展。鄉鎮污水處理工程具有規模較小、地域分散、運行管理人才 和資金相對缺乏的特點,如果完全套用城鎮污水處理廠的處理工藝,存在占地面積大、噸水 處理能耗高、運行管理不便等問題;如需達到更嚴格的GB18918-2002一級A標準,需要增加 深度處理單元。
現行的膜-生物反應器處理技術利用膜分離技術與生物處理技術相結合,具有占地面積 小、處理效率高、出水水質好等優點,用于中、小規模的低濃度有機廢水處理,出水可以達 到一級A標;但是單純的膜-生物反應器除了需要維持生物處理所需的充氧曝氣量外,還需要 對膜進行連續空氣沖洗,總曝氣量同常規的生物處理相比,大約增加50%,具有較高的能耗; 同時污泥濃度較大,跨膜壓差較高,膜的通量、工作周期和使用壽命受到影響,增加了膜投 資和維護成本;剩余污泥產量相對較大,增加了污泥處理的難度。這些缺陷嚴重阻礙了膜- 生物反應器技術在鄉鎮生活處理領域的廣泛應用。
發明內容
本發明要解決的技術問題在于降低單純的膜-生物反應器的能耗,減少剩余污泥,降低懸 浮污泥濃度和跨膜壓差,減少膜通量的下降幅度,延長膜工作周期和使用壽命,從而降低系 統的投資和運行維護費用。
本發明解決上述技術問題所采取的技術方案是:一種低濃度有機廢水的雙膜內循環生物 處理工藝,包括以下具體步驟:
(1)除渣:將低濃度有機廢水經過集水池中的格柵和格網,除去2mm以上的顆粒物和 雜物,避免堵塞后續設備;
(2)使用提升泵將經過除渣后的低濃度有機廢水提升到雙膜內循環生物反應器中,所述 的雙膜內循環生物反應器設有導流板,導流板將雙膜內循環生物反應器分隔為填料生物膜反 應區和微濾膜過濾區,所述的填料生物膜反應區設有生物膜填料和布水裝置,微濾膜過濾區 安裝有浸入式微濾膜組件和集水裝置;填料生物膜反應區和微濾膜過濾區底部均設有曝氣裝 置,兩個曝氣裝置分別通過進氣電動閥與氣泵連接并能夠形成曝氣氣流;低濃度有機廢水通 過曝氣氣流的作用能夠在填料生物膜反應區和微濾膜過濾區之間形成內循環;
低濃度有機廢水經布水裝置均勻地進入填料生物膜反應區,間隙開啟填料生物膜反應區 的進氣電動閥,交替形成厭氧-缺氧-好氧的環境,完成微生物好氧硝化吸磷、缺氧脫氮反應 和厭氧放磷反應,達到脫氮除磷的效果;反應后的低濃度有機廢水在曝氣氣流的作用下在填 料生物膜反應區和微濾膜過濾區之間形成內循環,并流經微濾膜過濾區,脫落的生物膜填料 和顆粒物被浸入式微濾膜組件截留,隨水流返回填料生物膜反應區,清水透過浸入式微濾膜 組件匯入集水裝置,經自吸泵抽吸出來;間隙開啟微濾膜過濾區的進氣電動閥沖洗浸入式微 濾膜組件,避免浸入式微濾膜組件堵塞;
(3)自吸泵抽吸出來的清水流經管道式的紫外線消毒器消毒后即可達標外排;而積累在 雙膜內循環生物反應器底部的污泥半年或一年清理一次即可。
所述的集水池中設有第一水位浮球開關,雙膜內循環生物反應器中設有第二水位浮球開 關,紫外消毒器連接玻璃轉子流量計。
所述的填料生物膜反應區和微濾膜過濾區的進氣電動閥交替間歇開啟。
所述的格網孔徑不超過2mm。
所述的雙膜內循環生物反應器中的生物膜填料采用生物接觸氧化法工藝所用的生物膜填 料。
所述的浸入式微濾膜組件采用浸入式膜-生物反應器組件,浸入式微濾膜組件的微濾膜材 質采用改性聚丙烯、聚偏氟乙烯或聚四氟乙烯,平均膜孔徑為0.1~0.2微米。
所述的處理工藝采用觸摸屏和可編程控制器控制,具有遠程通訊和控制接口。
本發明采用雙膜內循環生物處理工藝,同單純的膜-生物反應器相比:充氧能耗降低約 50%;剩余污泥非常少,無需專門的污泥處理設施;系統的懸浮污泥濃度降低80-90%,跨膜 壓差降低,膜通量下降幅度減少,膜工作周期和使用壽命得到延長,從而降低系統的投資和 運行維護費用。本發明對于排放要求較高或需要回用的中、小型規模低濃度廢水處理項目, 具有一定的優勢。







